Оренбург, Строящийся жилой дом
Площадь
Жилая
Кухня
Отделка
Класс жилья
Комнат
Номер кв.
Этаж
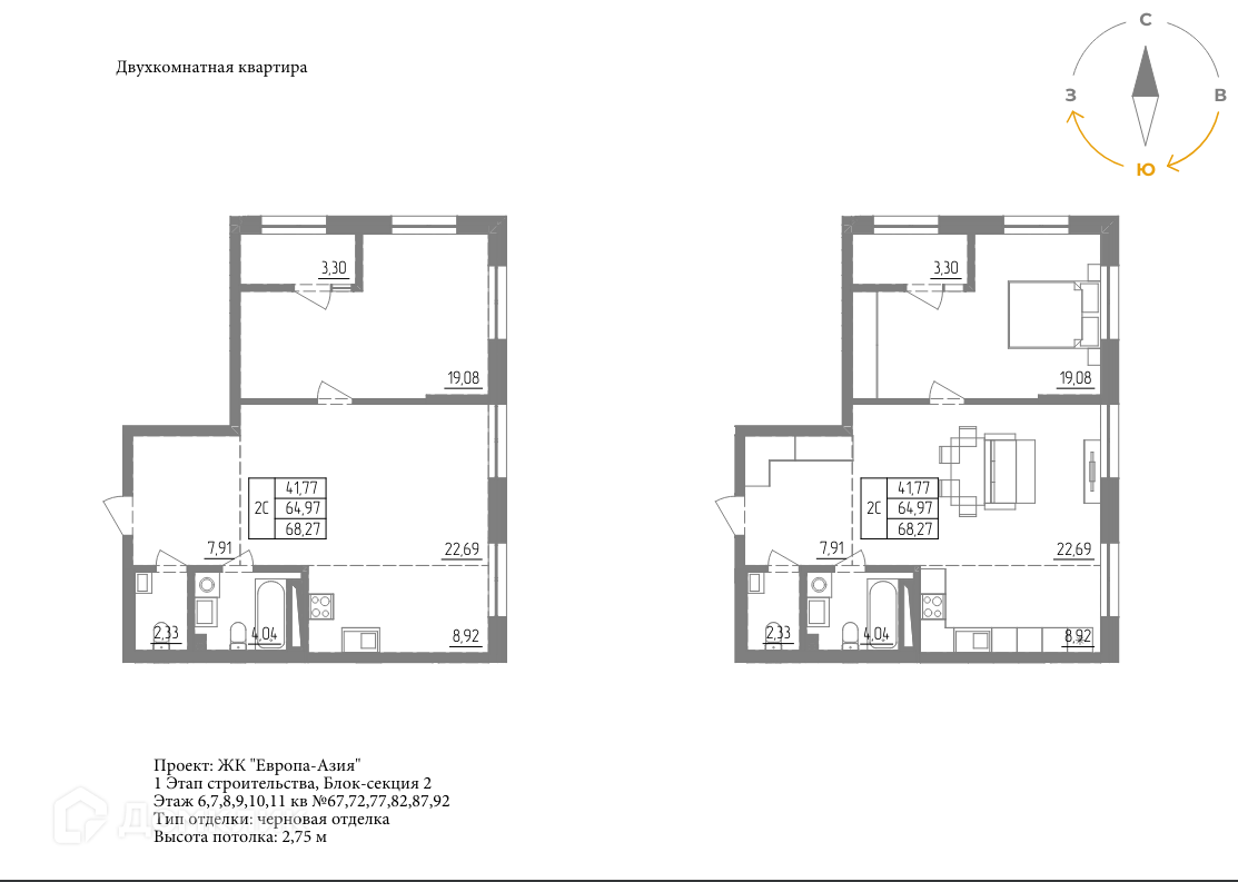
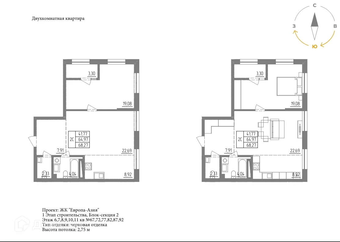
Доступна к покупке 2-комнатная квартира в востребованном жилом комплексе "ЖК Европа-Азия" 🏢. Квартира расположена на 6-м этаже 10-этажного дома. Отличный вариант для комфортной жизни.
Для бесплатного бронирования и зафиксировать цену — свяжитесь с нами прямо сейчас! 📞
На сегодняшний день ООО «Специализированный застройщик «Результат» возводит Жилой комплекс «Европа-Азия», с прилегающим благоустройством – единственный в таком формате во всём областном центре. 1 Этап строительства, многоквартирный жилой дом со встроенно-пристроенными помещениями и подземным паркингом, переменной этажности (9-12 этажей). Блок-секция 1 - 8 жилых этажей, Блок-секция 2 - 10 жилых этажей, Блок-секция 3 - 11 жилых этажей. В каждом подъезде есть колясочные и велосипедные комнаты с доступом только для жителей. Интерьеры подъездов выполнены в едином стиле. Планировка помещений разработана с учетом оптимального внутреннего зонирования. Квартиры представляют собой студии, 1, 2-х и 3-х комнатные квартиры, с совмещенными санузлами и встроенными кухнями - нишами объединенными с гостиными и отдельными помещениями для кухни. Блок 1/1,1/2,1/3 имеют обособленные входы в жилые секции со стороны ул. 5-ый проезд. Со стороны пр. Гагарина и с ул. 5-ый проезд расположены входы в помещения коммерческого назначения. Каждая блок-секция имеет обособленный выход на эксплуатируемую кровлю, на которой сформировано благоустроенное дворовое пространство, только для жителей ЖК «Европа-Азия». Для сохранения единой визуальной связи стилобат имеет единую витражную систему. Входные группы расположены на уровне земли. Окончание строительства Жилого комплекса «Европа-Азия» планируется в 2027 году.
Срок сдачи: 1 кв. 2026 г.
Срок сдачи: 1 кв. 2026 г.
Площади квартир
Этажность
Класс жилья
Корпусов
Стены